生野区林寺2丁目 店舗付住宅

【外観】の画像

【外観】 -

【外観】の画像

【外観】 -

【洗面所】の画像

【洗面所】 -

【浴室】の画像

【浴室】 -

【居間・リビング】の画像

【居間・リビング】 -

【その他】の画像

【その他】 1階店舗の酒屋さん部分です。

【洋室】の画像

【洋室】 -

【洋室】の画像

【洋室】 -

【和室】の画像

【和室】 -

【その他】の画像

【その他】 1階倉庫部分です。

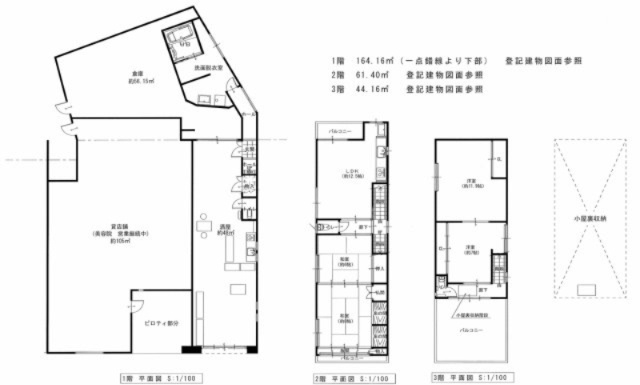
【間取り】の画像

【間取り】 -

【外観】の画像 外観
【外観】の画像 外観
【洗面所】の画像 洗面所
【浴室】の画像 浴室
【居間・リビング】の画像 居間・リビング
【その他】の画像 その他
【洋室】の画像 洋室
【洋室】の画像 洋室
【和室】の画像 和室
【その他】の画像 その他
【間取り】の画像 間取り

店付住宅

価格
9,500万円 支払いシミュレーション
所在地
大阪府大阪市生野区林寺2丁目
交通
大阪環状線「寺田町」駅徒歩14分
坪単価
127.47万円
建物面積(坪数)
246.41㎡ (74.53坪)
間取り
-
築年月(築年数)
1993年 11月 (築32年)
階建て / 所在階
3階建て

まずはご相談ください!

0120-85-7777

営業時間
9:00~19:00
定休日
水曜日(第2、3、4火曜日)

担当者スタッフより

おすすめポイント

JR大阪環状線「寺田町」駅まで徒歩14分でアクセス可能です。

寺田町駅まで歩いて14分ほどの物件です。1階は酒屋さんになっておりますので倉庫や店舗にも利用できます。2階と3階は居住スペースになっています。
1階の一部分を美容室に月額15万円で賃貸中です。

まずはご相談ください!

営業時間
9:00~19:00
定休日
水曜日(第2、3、4火曜日)

物件概要

物件番号:98410067 /  情報更新日:2026年04月04日 /  更新予定日:2026年04月18日 /  取引条件の有効期限:2026年04月18日 情報の見方
価格 9,500万円 支払いシミュレーション 坪単価 127.47万円
管理費 - 修繕積立金 -
所在地 大阪府大阪市生野区林寺2丁目 交通
    大阪環状線「寺田町」駅徒歩14分
建物面積(坪数) 246.41㎡(74.53坪) 間取り -
築年月(築年数) 1993年 11月 (築32年) 所在階 / 階建て - / 3階建て
向き - バルコニー面積 -
現況 / 引渡時期 居住中 / 相談 駐車場 / 月額料金 - / -
建物構造 軽量鉄骨 販売戸数 / 棟総戸数 - / -
管理組合有無 - 管理形態 -
管理方式 - 管理会社 -
土地権利 所有権 土地面積 公簿 : 246.41㎡
地目 / 地勢 宅地 / - 用途地域 近隣商業 / 近隣商業
国土法届出要否 不要 取引態様 専属専任媒介
備考 1階の一部を美容室に月額15万円で賃貸中です。

まずはご相談ください!

営業時間
9:00~19:00
定休日
水曜日(第2、3、4火曜日)

取り扱い店舗(さくらホーム株式会社)

さくらホーム株式会社の画像

所在地
大阪府高石市西取石6丁目3-9 
電話番号
0120-85-7777
営業時間
9:00~19:00
定休日
水曜日(第2、3、4火曜日)

支払いシミュレーションこの物件を購入した場合の、月々の支払い価格の一例です。借り入れを保証するものではございません。

返済期間
金利
ボーナス時の増額(1回分)
借入金額
頭金

※元利均等方式金利5.00%まで※返済年数5~50年まで入力できます

※ボーナスは年2回で計算しています。1000万円まで入力できます

毎月の返済額

まずはご相談ください!

営業時間
9:00~19:00
定休日
水曜日(第2、3、4火曜日)

売却査定

お問い合わせ